colombarium4
colombarium5
colombarium6
colombarium7
colombarium8
colombarium9
colombarium10
colombarium11
colombarium4
colombarium5
colombarium6
colombarium7
colombarium8
colombarium9
colombarium10
colombarium11

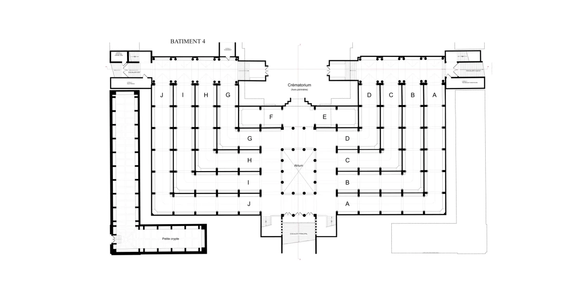
Colombarium du Père Lachaise

Construit progressivement de 1890 jusqu’aux années 1960, Le Columbarium, inscrit à l’inventaire supplémentaire des Monuments historiques, présente aujourd’hui une quantité de désordres nécessitant un fin travail de restauration des éléments de décors et des ouvrages. La dalle au-dessus du Colombarium souterrain fait l’objet d’un aménagement paysager. 

Maîtrise d’ouvrage
Ville de Paris
Architecte mandataire
Philippe Prost / AAPP
Maîtrise d’œuvre
DESIGNER UNIT, Signalétique
ASSELIN, Économiste
MASSE, Structure
Type de mission
Restauration du columbarium du cimetière du Père Lachaise
Coût
30 M€ HT
Statut
Chantier

Le projet propose au-dessus du Colombarium souterrain un aménagement du sol à la manière d’un petit square, végétalisé par une série de parterres et de bancs ; au centre les pavés de verre qui éclairaient naturellement l’atrium souterrain et qui avaient été retirés au bénéfice d’une augmentation des places de stationnement, ont été replacés ; deux édicules symétriques en métal perforé renforcent la symétrie de la composition de part et d’autre de l’escalier menant aux espaces souterrains.

Au-delà de la remise en conformité de la sécurité incendie, et entre autres travaux urgents au regard de l’état dégradé du Colombarium extérieur, figurent la réfection des toitures, celle des façades qui présentent de nombreuses fissures, dont les principales fendent les bâtiments sur toute leur hauteur, les joints ouverts pouvant atteindre parfois jusqu’à 6 cm de large. Mais aussi d’autres fissures plus fines ont cisaillé des blocs de pierre de dimensions importantes ; les pavés de verre éclairant la petite crypte présentent de nombreuses casses confirmant que les bâtiments subissent les mouvements du retrait et gonflement du sous-sol argileux ; la charpente est désaxée par rapport à la maçonnerie ; au sol, quelques éléments de carrelages ou de dalles en pierre sont cassés. Le Columbarium souterrain qui résiste aux mouvements du sous-sol argileux, probablement en raison du caractère monobloc du béton armé présentent moins de désordres de ce type. Des ouvrages décoratifs nécessitent une restauration minutieuse dans un lieu vibrant de mémoires.