paris-5-cluny-images-haut-de-page-mb
paris-5-cluny-images-haut-de-page-mb7
paris-5-cluny-images-haut-de-page-mb6
paris-5-cluny-images-haut-de-page-mb5
paris-5-cluny-images-haut-de-page-mb4
paris-5-cluny-images-haut-de-page-mb3
paris-5-cluny-images-haut-de-page-mb2
paris-5-cluny-images-haut-de-page-mb
paris-5-cluny-images-haut-de-page-mb7
paris-5-cluny-images-haut-de-page-mb6
paris-5-cluny-images-haut-de-page-mb5
paris-5-cluny-images-haut-de-page-mb4
paris-5-cluny-images-haut-de-page-mb3
paris-5-cluny-images-haut-de-page-mb2

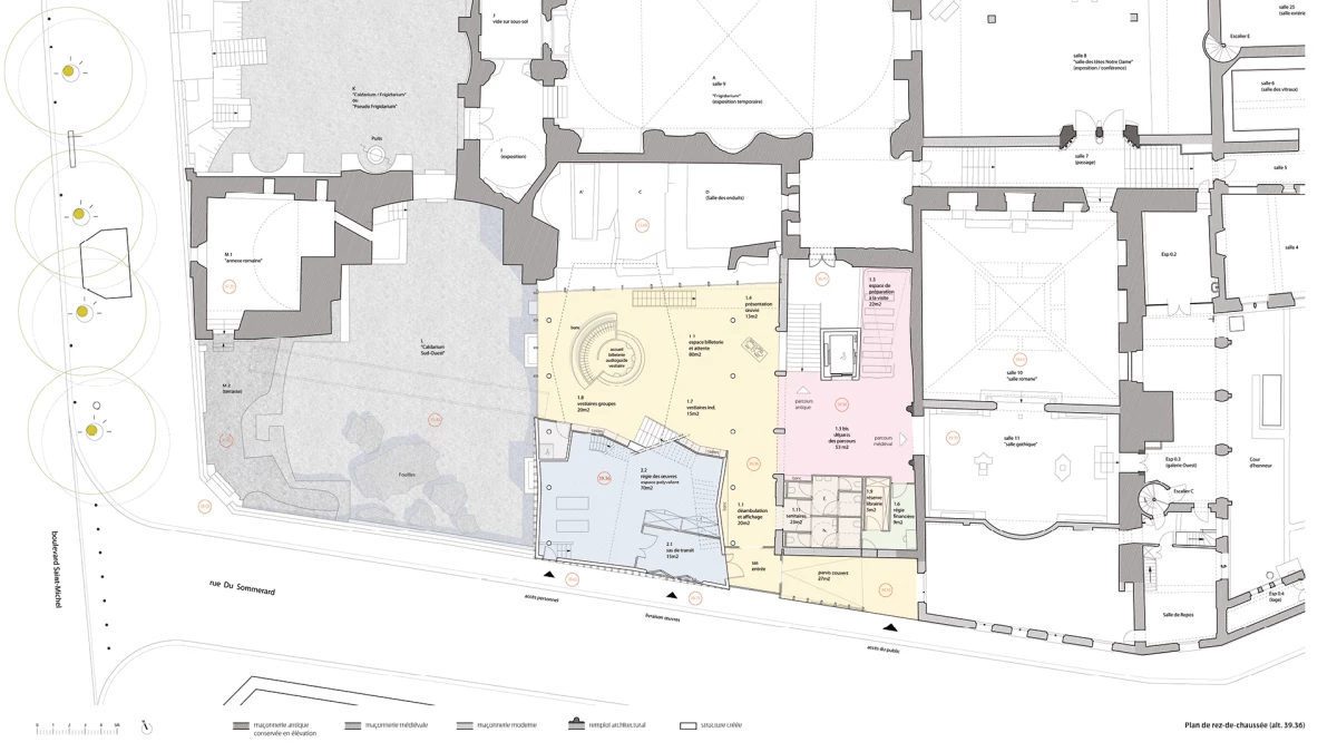
Musée national du Moyen Âge – Thermes et Hôtel de Cluny – Création d’un nouvel accueil et réflexion sur la protection des vestiges

Construire un nouvel accueil pour le musée de Cluny c’est d’abord donner à ce grand musée national une entrée à l’échelle de son site, visible et accessible pour tous les publics comme pour les oeuvres. Demain ce nouvel accueil sera le point de départ de tous les parcours dans les espaces antiques comme vers les collections médiévales. Mais au-delà, pour l’architecte, créer un nouvel accueil pour le musée de Cluny est une occasion unique de rendre intelligible la superposition et la juxtaposition des bâtiments comme des époques, de faire rimer mémoire avec création, stratigraphie archéologique avec collage architectural.

Programme
Architecture, Patrimoine, Aménagement intérieur, Scénographie
Maîtrise d’ouvrage
Ministère de la culture et de la communication – OPPIC
Architecte mandataire
Philippe Prost / AAPP
Maîtrise d’œuvre
Bureau Michel FORGUE, Économiste de la construction
C&E Ingénierie, BET Structure
ALTO Ingénierie, BET Fluides
HI Lighting, Concepteur lumière
Studio DAP, BET Acoustique
Frédérique Vincent, Conservation préventif
Type de mission
Construction neuve
Surface
694 m²
Coût
3,6 M€ HT
Perspectives
Damien Cabiron
Statut
Concours

Pour se saisir de la chance offerte à l’architecture qui se doit pour l’heure d’être ambitieuse et généreuse, à la massivité de l’existant répondra la légèreté du projet lisible et réversible. Le nouvel accueil adopte la structure d’un portique posé sur un massif de maçonneries antiques, depuis lequel s’élancent à plus de dix mètres de hauteur dix colonnes qui portent une toiture plane et horizontale formant un abri protecteur et accueillant. Un abri enveloppé par de grandes feuilles vitrées scandées par des meneaux de bronze verticaux, dont le rythme varie selon les faces du portique comme pour mieux mettre en mouvement le nouvel édifice ouvert sur la ville, les vestiges archéologiques et le frigidarium, immergé tout à la fois dans la vie contemporaine et l’antiquité lointaine. En s’implantant sur l’emprise d’une ancienne salle chaude des thermes, le nouvel accueil se trouve ainsi comme idéalement placé à l’articulation de l’espace et du temps. S’inscrivant dans la perspective de l’hôtel médiéval et du bâtiment néo gothique, la nouvelle façade vient envelopper le bâtiment néo-romain de Boeswillwald, dont la toiture est écrêtée afin qu’aucune couverture ne surplombe plus celle du Frigidarium, son nouveau toit devenant jardin suspendu rappelant le jardin des Abbés hier suspendu sur les voûtes antiques. À l’intérieur du nouvel accueil, l’espace est encore une fois en mouvement. Se contractant et se verticalisant pour dessiner une faille, puis se dilatant et s’horizontalisant pour former un hall. Point de plans fermés, de couloirs rigides, mais un jeu de volumes dans l’espace qui accrochent la lumière ou la diffusent. Une fois le nouvel accueil édifié, restera encore à protéger et mettre en valeur les vestiges des thermes antiques pour leur redonner une présence dans la ville et surtout au-delà leur rendre toute leur Urbanitas. L'opération porte sur la construction d'un nouveau bâtiment sur la terrasse du bâtiment Boeswillwald pour permettre : d'améliorer l'accueil du public, d'améliorer la gestion logistique des œuvres, de rendre le musée accessible aux personnes à mobilité réduite, de proposer des parcours chronologiques notamment des espaces antiques vers les collections médiévales, de faciliter la visibilité du site dans l'espace urbain.